Espace propriétaire
fr

Votre recherche

Exclusivité
Nouveauté
Paris (75016)

2 pièces - 28,40 m²

2 PIECES - PORTE DAUPHINE - CHARME ANCIEN

290 000 €
Ref : NRV80001007
A propos de ce bien

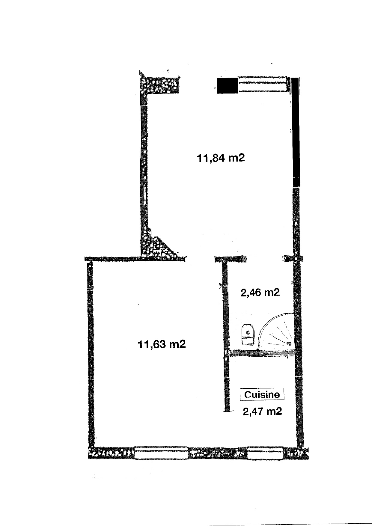
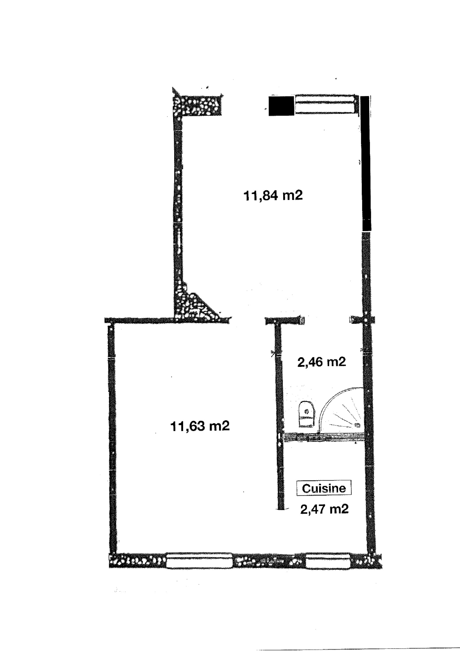
Dans le quartier résidentiel de la Porte Dauphine, au sein d’un immeuble ancien des années 1920-1930, SIAMO vous présente un 2 pièces de 28,40 m², situé au 1er étage avec ascenseur d’une copropriété bien entretenue de 31 lots principaux.

Idéalement situé, à 2 minutes du RER C (Henri Martin) et à 7 à 8 minutes du métro ligne 2 (Porte Dauphine), à proximité immédiate de toutes les commodités, cet appartement est traversant Est/Ouest.

Il se compose d’un séjour avec cheminée, d’une chambre confortable de 11,70 m², d’une cuisine, ainsi que d’une salle d’eau avec WC.

Une cave complète ce bien.

Amateurs de l’ancien, vous serez séduits par sa belle hauteur sous plafond, son cachet et son emplacement recherché.

Descriptif de ce bien
Général
Code postal 75016
Surface loi Carrez (m²) 28,40 m²
Nombre de chambre(s) 1
Nombre de pièces 2
Etage 1
Ascenseur OUI
Détails
Nb de salle d'eau 1
Cuisine Séparée
Type de cuisine Equipée
Mode de chauffage Electrique
Type de chauffage Convecteur
Format de chauffage Individuel
Interphone OUI
Balcon NON
Terrasse NON
Cave OUI
Surface cave (m²) 1
Exposition Est-Ouest
Année de construction 1930
Financier
Prix de vente honoraires TTC inclus 290 000 €
Prix de vente honoraires TTC exclus 280 000 €
Honoraires TTC à la charge acquéreur 3,57 %
Charges 90 €
Taxe foncière annuelle 790 €
Energie
DPE GES
Contacter pour ce bien
L'agence
Téléphone 01 48 08 68 22
Adresse
1 rue Saulpic 94300 Vincennes

* Champ obligatoire

Les informations recueillies sur ce formulaire sont enregistrées dans un fichier informatisé par La Boite Immo agissant comme Sous-traitant du traitement pour la gestion de la clientèle/prospects de l'Agence / du Réseau qui reste Responsable du Traitement de vos Données personnelles. La base légale du traitement repose sur l'intérêt légitime de l'Agence / du Réseau. Elles sont conservées jusqu'à demande de suppression et sont destinées à l'Agence / au Réseau. Conformément à la loi « informatique et libertés », vous disposez des droits d’accès, de rectification, d’effacement, d’opposition, de limitation et de portabilité de vos données. Vous pouvez retirer votre consentement à tout moment en contactant directement l’Agence / Le Réseau. Consultez le site https://cnil.fr/fr pour plus d’informations sur vos droits. Si vous estimez, après avoir contacté l'Agence / le Réseau, que vos droits « Informatique et Libertés » ne sont pas respectés, vous pouvez adresser une réclamation à la CNIL. Nous vous informons de l’existence de la liste d'opposition au démarchage téléphonique « Bloctel », sur laquelle vous pouvez vous inscrire ici : https://www.bloctel.gouv.fr Dans le cadre de la protection des Données personnelles, nous vous invitons à ne pas inscrire de Données sensibles dans le champ de saisie libre.
Ce site est protégé par reCAPTCHA, les Politiques de Confidentialité et les Conditions d'Utilisation de Google s'appliquent.

Découvrir nos outils